Foto leveres af Google Street View og kan være upræcist:
Erhvervslokaler til leje, Odense C, Vindegade
Vindegade, 5000 Odense C- Erhvervslokaler til leje
- Ca. 440 m2
- Ca. 33.000 kr. per måned
Vindegade, 5000 Odense C
- Erhvervslokaler til leje
- Ca. 440 m2
- Ca. 33.000 kr. per måned
Få mere info
Du linkes til en anden portal, som evt. kan kræve betaling eller oprettelse
Erhvervslokaler til leje, Odense C, Vindegade
Fakta
- 315278
- Erhvervslokaler
- Ca. 440 m2
- Ca. 396.500 kr.
- Ca. 33.000 kr.
- Ca. 1.000 kr.
Erhvervslokaler til leje i 5000 Odense C
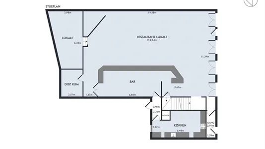
Med en beliggenhed i Odense centrum udbydes diskotek/natklub.
Lokalerne fremstår indbydende og klar til overtagelse. Lejemålet er indrettet til diskotek med dansegulv, dj-område, stor bar, opvask og køkken.
Kundetoiletter, garderobe og personalefaciliteter findes i lejemålets kælderetage.
På lejemålets 1. sal er indrettet eventlokale med egen bar, toilet og dansegulv.
Overfor lejemålet findes der offentlig parkeringskælder med betalingsparkering.
Sagsprospektet vil blive sendt til din mail, men du kan også se det med det samme på nedenstående link.
Tak for din henvendelse. Din besked vil blive behandlet hurtigst muligt.
Vi har noteret dine ønsker.
Vi kontakter dig, så snart der er en ejendom, som matcher dine kriterier.
Tak for din henvendelse.
Vi kontakter dig snarest muligt for at aftale dato og tidspunkt for vurderingen.
Lokalerne fremstår indbydende og klar til overtagelse. Lejemålet er indrettet til diskotek med dansegulv, dj-område, stor bar, opvask og køkken.
Kundetoiletter, garderobe og personalefaciliteter findes i lejemålets kælderetage.
På lejemålets 1. sal er indrettet eventlokale med egen bar, toilet og dansegulv.
Overfor lejemålet findes der offentlig parkeringskælder med betalingsparkering.
Tak for din interesse i ejendommen
Sagsprospektet vil blive sendt til din mail, men du kan også se det med det samme på nedenstående link.
Tak for din henvendelse. Din besked vil blive behandlet hurtigst muligt.
Få besked om nye ejendomme før andre
Tak for din tilmelding
Vi har noteret dine ønsker.
Vi kontakter dig, så snart der er en ejendom, som matcher dine kriterier.
Få en uvildig vurdering af din erhvervsejendom
Tak for din henvendelse.
Vi kontakter dig snarest muligt for at aftale dato og tidspunkt for vurderingen.
Information og data
Dette lokale ligger på Vindegade i Odense C. Odense C har postnummeret 5000, og ligger i kommunen Odense, som ligger i Odense. Lokalet er i alt 438 m2. Lejepris: Ca. 396.500 kr. per år.