Foto leveres af Google Street View og kan være upræcist:
Klinik til leje, Valby, Mosedalvej 11-13
Mosedalvej 11-13, 2500 Valby- Klinik til leje
- 300 - 692 m2
Mosedalvej 11-13, 2500 Valby
- Klinik til leje
- 300 - 692 m2
Kontakt udlejeren nu
Du linkes til en anden portal, som evt. kan kræve betaling eller oprettelse
Klinik til leje, Valby, Mosedalvej 11-13
Fakta
- 293481
- Klinik
- Showroom
- Kontor
- 300 - 692 m2
- 761.200 kr.
- 63.433 kr.
- 1.100 kr.
- 2
- 3 Pladser
- 40
KONTAKT UDLEJEREN NU
Du linkes til en anden portal, som evt. kan kræve betaling eller oprettelse
Centralt lejemål til kontor, klinik eller kreative erhverv i pulserende kvarter
Ved siden af Nordisk Film og PureGym udlejes disse lokaler.
Forslag til lejer: Skønhedssalon, negleklinik, fysioterapi eller lign. Det er muligt at leje lokaler separat med fællesarealer. Billeder er vejledende
Det vil være muligt at anvende PureGyms fitnesscenter og faciliteter.
Gode vilkår tilbydes til lejer!
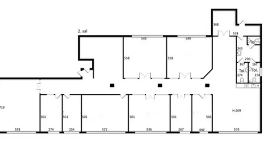
Vi udbyder et unikt og repræsentativt kontorlejemål på i alt 692 m², fordelt på 2. og 3. sal, med direkte adgang til en privat tagterrasse. Lejemålet er udført i en moderne, industrielt inspireret stil, der kombinerer åbne kontorområder med Newyorker-vægge mod møde- og kontorlokaler, hvilket skaber en lys og åben atmosfære.
Kontoret er elegant indrettet med eksponerede betonsøjler og bjælker, som tilfører et råt, men samtidig moderne udtryk. Det robuste epoxygulv bidrager til både holdbarhed og et stilrent design. På 2. sal findes toiletter samt et funktionelt tekøkken, mens 3. sal ligeledes er udstyret med et tekøkken, hvilket sikrer optimale faciliteter for medarbejderne uden behov for at forlade kontoret.
Forslag til lejer: Skønhedssalon, negleklinik, fysioterapi eller lign. Det er muligt at leje lokaler separat med fællesarealer. Billeder er vejledende
Det vil være muligt at anvende PureGyms fitnesscenter og faciliteter.
Gode vilkår tilbydes til lejer!
Vi udbyder et unikt og repræsentativt kontorlejemål på i alt 692 m², fordelt på 2. og 3. sal, med direkte adgang til en privat tagterrasse. Lejemålet er udført i en moderne, industrielt inspireret stil, der kombinerer åbne kontorområder med Newyorker-vægge mod møde- og kontorlokaler, hvilket skaber en lys og åben atmosfære.
Kontoret er elegant indrettet med eksponerede betonsøjler og bjælker, som tilfører et råt, men samtidig moderne udtryk. Det robuste epoxygulv bidrager til både holdbarhed og et stilrent design. På 2. sal findes toiletter samt et funktionelt tekøkken, mens 3. sal ligeledes er udstyret med et tekøkken, hvilket sikrer optimale faciliteter for medarbejderne uden behov for at forlade kontoret.
Information og data
Dette lokale, som også kan anvendes til Showroom eller Kontor, ligger på Mosedalvej i Valby. Valby har postnummeret 2500, og ligger i kommunen København, som ligger i København. Lokalet er i alt 692 m2. Der medfølger 2 parkeringspladser til ejendommen.