Foto leveres af Google Street View og kan være upræcist:
Kontorfællesskab til leje, Birkerød, Toftebakken
Toftebakken, 3460 Birkerød- Kontorfællesskab til leje
- 10 - 20 m2
Toftebakken, 3460 Birkerød
- Kontorfællesskab til leje
- 10 - 20 m2
Kontakt udlejeren nu
Du linkes til en anden portal, som evt. kan kræve betaling eller oprettelse
Kontorfællesskab til leje, Birkerød, Toftebakken
Gode kontorfaciliteter - fleksible indretningsmuligheder
Dejlige kontorfaciliteter i en hyggelig og velholdt ejendom i Birkerød. Indretningsmulighederne er fleksible, der er med andre ord plads til, at den lille iværksættervirksomhed kan vokse. Der er fælles køkken m. spiseplads samt et sofaarrangement. Sidstnævnte er muligt, at omdanne til et fælles mødelokale, hvis behovet opstår.
Ejendommen huser andre kontorlejere og har grønne udenomsarealer samt gratis parkering. Der er kort afstand til Kongevejen samt motorvejsnettet E 47 ved Hørsholm. Der er gåafstand til Birkerød centrum og station samt ca. 200 meter til busforbindelser. Kontakt os og få en uforpligtende snak eller visning på ejendommen.
Ejendommen huser andre kontorlejere og har grønne udenomsarealer samt gratis parkering. Der er kort afstand til Kongevejen samt motorvejsnettet E 47 ved Hørsholm. Der er gåafstand til Birkerød centrum og station samt ca. 200 meter til busforbindelser. Kontakt os og få en uforpligtende snak eller visning på ejendommen.
Services:
Eget firmaskilt ved hoveddør, Køkken/frokoststue, Lagerplads, Parkeringspladser
Information og data
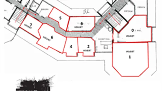
Dette lokale, som også kan anvendes til Kontor eller Klinik, ligger på Toftebakken i Birkerød. Birkerød har postnummeret 3460, og ligger i kommunen Rudersdal, som ligger i Nordsjælland. Lokalet er i alt 20 m2.