Foto leveres af Google Street View og kan være upræcist:
Kontor til leje, Birkerød, Mølledamsvej 2
Mølledamsvej 2, 3460 Birkerød- Kontor til leje
- Ca. 1.180 m2
- Ca. 125.000 kr. per måned
Mølledamsvej 2, 3460 Birkerød
- Kontor til leje
- Ca. 1.180 m2
- Ca. 125.000 kr. per måned
Få mere info
Du linkes til en anden portal, som evt. kan kræve betaling eller oprettelse
Kontor til leje, Birkerød, Mølledamsvej 2
Fakta
- 312317
- Kontor
- Ca. 1.180 m2
- Ca. 1.500.000 kr.
- Ca. 125.000 kr.
- Ca. 1.500 kr.
Birkerød Kongevej - gode parkeringsforhold og stort potentiale
Lejemålet er beliggende i bygningen ud til Birkerød Kongevej, som er er opført i 1971 i brune sten med tagpaptag. Ejendommen er i 2 plan med parterrekælder med direkte indgang fra indkørslen fra Mølledamsvej.
Lokalerne har senest været anvendt til fitnesscenter og indretningen bærer præg af denne anvendelse, men der er også mange alternative anvendelsesmuligheder, såsom kontor eller showroom anvendelse.
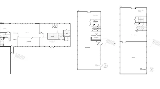
Lejemålet er fordelt over 3 etager med et trapperum og udvendig flugtvejstrappe. Lokalerne er primært indrette som storrumslokaler med 2 toiletter pr. etage. Lokalerne er apteret med nedhængte systemlofter med indbygget lysarmaturer samt ventilationssystem langs facaden. Lokalerne har varierende gulvbelægning fra trægulve til gummisportsgulve.
Parterreetagen er indrettet med både herre og dameomklædning med bruseniche.
Bygningen fremtræder udvendigt og indvendigt i en præsentabel og vel vedligeholdt stand, men mulighed for tilpasning af ejendommen med lette vægge efter lejers behov.
Ejendommen ligger lige ved Birkerød Kongevej. Hillerød- og Helsingørmotorvejen er også tæt beliggende.
Der er gode parkeringsforhold ved ejendommen og der er en skøn udsigt fra lejemålet ud til de grønne omgivelser rundt på ejendommen.
Lokalerne har senest været anvendt til fitnesscenter og indretningen bærer præg af denne anvendelse, men der er også mange alternative anvendelsesmuligheder, såsom kontor eller showroom anvendelse.
Lejemålet er fordelt over 3 etager med et trapperum og udvendig flugtvejstrappe. Lokalerne er primært indrette som storrumslokaler med 2 toiletter pr. etage. Lokalerne er apteret med nedhængte systemlofter med indbygget lysarmaturer samt ventilationssystem langs facaden. Lokalerne har varierende gulvbelægning fra trægulve til gummisportsgulve.
Parterreetagen er indrettet med både herre og dameomklædning med bruseniche.
Bygningen fremtræder udvendigt og indvendigt i en præsentabel og vel vedligeholdt stand, men mulighed for tilpasning af ejendommen med lette vægge efter lejers behov.
Ejendommen ligger lige ved Birkerød Kongevej. Hillerød- og Helsingørmotorvejen er også tæt beliggende.
Der er gode parkeringsforhold ved ejendommen og der er en skøn udsigt fra lejemålet ud til de grønne omgivelser rundt på ejendommen.
Information og data
Dette lokale ligger på Mølledamsvej i Birkerød. Birkerød har postnummeret 3460, og ligger i kommunen Rudersdal, som ligger i Nordsjælland. Lokalet er i alt 1178 m2. Lejepris: Ca. 1.500.000 kr. per år.