Foto leveres af Google Street View og kan være upræcist:
Kontor til leje, København S, Jenagade 22
Jenagade 22, 2300 København S- Kontor til leje
- 310 m2
Jenagade 22, 2300 København S
- Kontor til leje
- 310 m2
Kontakt udlejeren nu
Du linkes til en anden portal, som evt. kan kræve betaling eller oprettelse
Kontor til leje, København S, Jenagade 22
Fakta
- 250373
- Kontor
- Showroom
- Klinik
- 310 m2
- Ikke angivet
- 795 kr.
KONTAKT UDLEJEREN NU
Du linkes til en anden portal, som evt. kan kræve betaling eller oprettelse
Kontor i kreative omgivelser
I området omkring Holmbladsgade og Strandlodsvej tilbydes nu 310 m² kontor til leje på Jenagade 22. Ejendommen fremstår i råt industrilook og indeholder kreative virksomheder så som TV-produktion, start-ups og padel tennis.
Området
Nærområdet Strandlodsvej/ Amager Strand/ Holmbladsgade har i de seneste år udviklet sig til at være et attraktivt erhvervs- og kulturelt orienteret byområde.
Ejendommen er let tilgængeligt i bil/metro/bus og på cykel. Med nærhed og nem adgang til motorvej og Kastrup Lufthavn samt via Vermlandsgade til indre by.
Der forefindes desuden parkeringspladser lige foran indgangen til lejemålet, som kan tillejes.
Ejendommen
Ejendommen er en ca. 100 år gammel Philips' fabriksbygning, hvilket giver det industrielle look med store vinduer. Ejendommen består af flere sammenhængende bygninger, nærværende bygning betegnes som hovedbygningen. Denne indeholder primært kontorer og TV produktion. Bygningen er oprindeligt opført i mursten og er ved en senere renovering blevet beklædt med korrugerede stålplader.
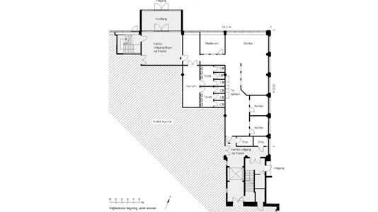
Lejemålet
Det 310 m² store lejemål overtages i dets nuværende stand og henvender sig særligt til virksomheder, der søger en central beliggenhed i nærheden af Indre By, Kastrup Lufthavn og motorvejen. Det er ideelt for kreative virksomheder. Lejemålet omfatter et åbent kontorområde med mødelokaler, tekøkken og toiletter samt opbevaringsrum, lagerplads e.l.
Området
Nærområdet Strandlodsvej/ Amager Strand/ Holmbladsgade har i de seneste år udviklet sig til at være et attraktivt erhvervs- og kulturelt orienteret byområde.
Ejendommen er let tilgængeligt i bil/metro/bus og på cykel. Med nærhed og nem adgang til motorvej og Kastrup Lufthavn samt via Vermlandsgade til indre by.
Der forefindes desuden parkeringspladser lige foran indgangen til lejemålet, som kan tillejes.
Ejendommen
Ejendommen er en ca. 100 år gammel Philips' fabriksbygning, hvilket giver det industrielle look med store vinduer. Ejendommen består af flere sammenhængende bygninger, nærværende bygning betegnes som hovedbygningen. Denne indeholder primært kontorer og TV produktion. Bygningen er oprindeligt opført i mursten og er ved en senere renovering blevet beklædt med korrugerede stålplader.
Lejemålet
Det 310 m² store lejemål overtages i dets nuværende stand og henvender sig særligt til virksomheder, der søger en central beliggenhed i nærheden af Indre By, Kastrup Lufthavn og motorvejen. Det er ideelt for kreative virksomheder. Lejemålet omfatter et åbent kontorområde med mødelokaler, tekøkken og toiletter samt opbevaringsrum, lagerplads e.l.
Information og data
Dette lokale, som også kan anvendes til Showroom eller Klinik, ligger på Jenagade i København S. København S har postnummeret 2300, og ligger i kommunen København, som ligger i København. Lokalet er i alt 310 m2.