Foto leveres af Google Street View og kan være upræcist:

Lager & Kontor til leje, Odense SØ, Svovlhatten 3

Svovlhatten 3, 5220 Odense SØ
  • Lager til leje
  • 681 m2
  • 28.287 kr. per måned
Lager & Kontor til leje, Odense SØ, Svovlhatten 3
Svovlhatten 3, 5220 Odense SØ
  • Lager til leje
  • 681 m2
  • 28.287 kr. per måned
Kontakt udlejeren nu
Du linkes til en anden portal, som evt. kan kræve betaling eller oprettelse

Lager & Kontor til leje, Odense SØ, Svovlhatten 3

Heimstaden Erhverv
Morten A.
tlf: 21756610
Se email-adressexxxxxxxxxxxxxxxx

Læs om udlejer

Fakta

  • 173015
  • Lager
  • Kontor
  • 681 m2
  • 339.445 kr.
  • 28.287 kr.
  • 450 kr.
KONTAKT UDLEJEREN NU
Du linkes til en anden portal, som evt. kan kræve betaling eller oprettelse

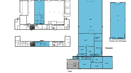
Lager & kontor til leje i 5220 Odense SØ

Lagerlejemål på 517 kvm. samt tilhørende kontorer på 164 kvm. Direkte adgang mellem kontor og lager. Lagerhøjden er ca. 5 m. under loft og ca. 4,5 m. under drager. Lageret er velegnet til både opbevaring og let produktion mv. Lageret er p.t. opdelt på ca. 300 kvm. lager, plus et lager på 70 kvm., samt 2 mindre lagerrum, et værkførerkontor og et stort personale/møderum, samt stor repos til eks. arkiv. Desuden nem portadgang til lageret samtidig med, at der er monteret adgangsdør ved siden af porten. Mulighed for let produktion i lageret. Optimale tilkørselsforhold, som sikrer effektiv logistik. Der er kørefast udenomsareal med god plads til lastbiler og af-og pålæsning. Kontoret er indrettet med te-køkken, 2 toiletsektioner, samt 4 kontorer i forskellige gode størrelser. Fin grundbelysning og godt lysindfald. Tæppebelagte gulve. Fleksible indretningsmuligheder. Gratis parkeringspladser på ejendommen/foran lejemålet, ligesom ejendommen har god eksponering mod den befærdede Ørbækvej med lejemålets facade direkte mod denne. Kontakt os for yderligere information eller en fremvisning. Masser af muligheder til mange typer af virksomheder.